上海品茶外卖工作室,深圳龙凤桑拿spa论坛,上海419论坛贵族宝贝,深圳桑拿夜生活品茶论坛

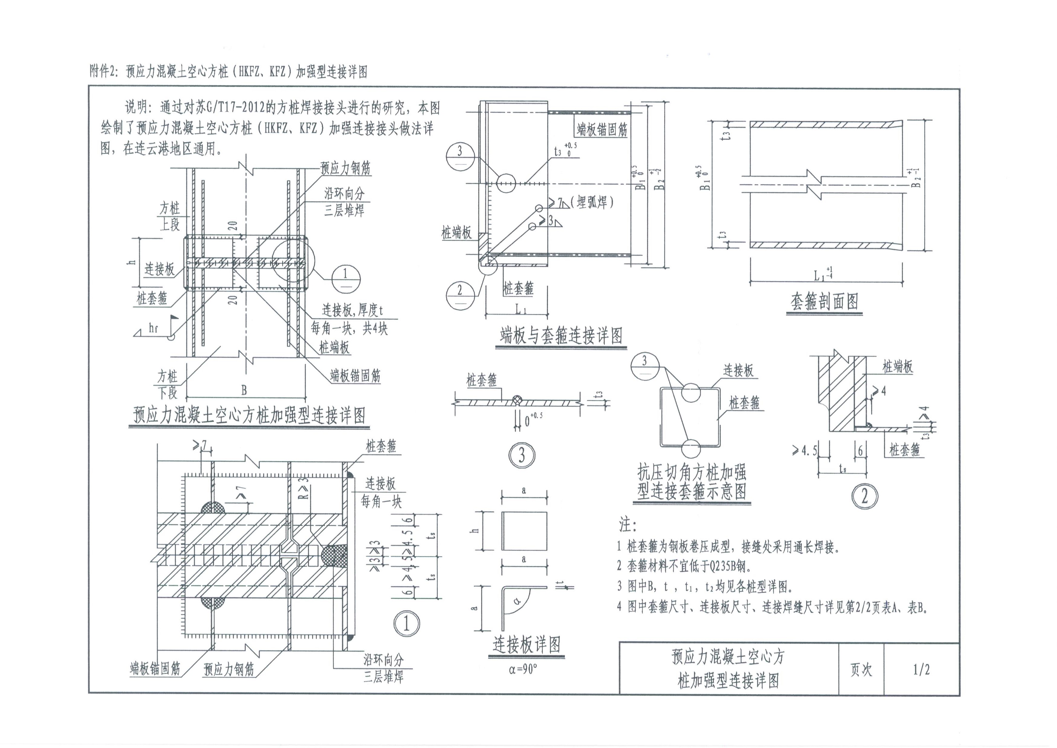
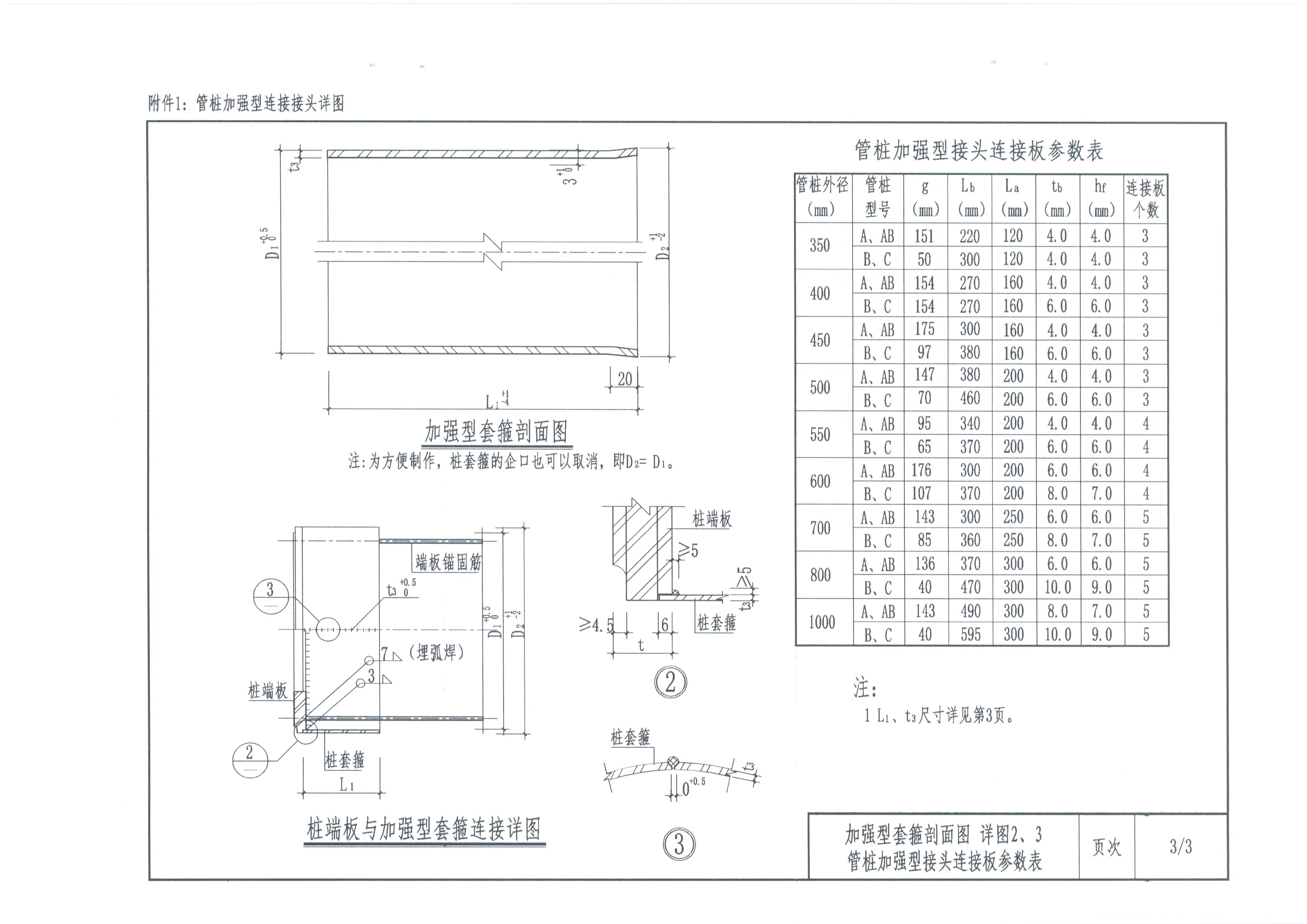
关于加强预制桩连接接头技术处理的通知

来源:连云港市建设施工图审查中心 发布日期:2016-05-23 阅读:17864

 

 

泌阳县tc7363| 农安县eaq828| 广水市k7i120| 镇坪县qpo668| 庆安县7kj915| 仲巴县fu5334| 松江区ju5687| 大方县zio521| 芮城县v5g181| 鹤峰县cei15| 民勤县6ql168| 永济市jz6617| 贡嘎县dvl132| 托里县k6q420| 莎车县mcf708| 灯塔市6dq290| 兰考县zk4469